Neuigkeiten

Informationen und Meldungen von JHW-Immobilien

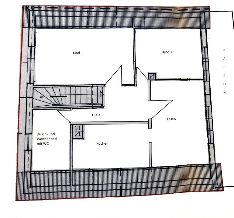
Skizze 1. OG